website_B&W.jpg
1-P1290266.JPG
P1100049.JPG
IMG_0522.jpg
P1120316.JPG
P1120321.JPG
P1100246.JPG
IMG_0542.JPG
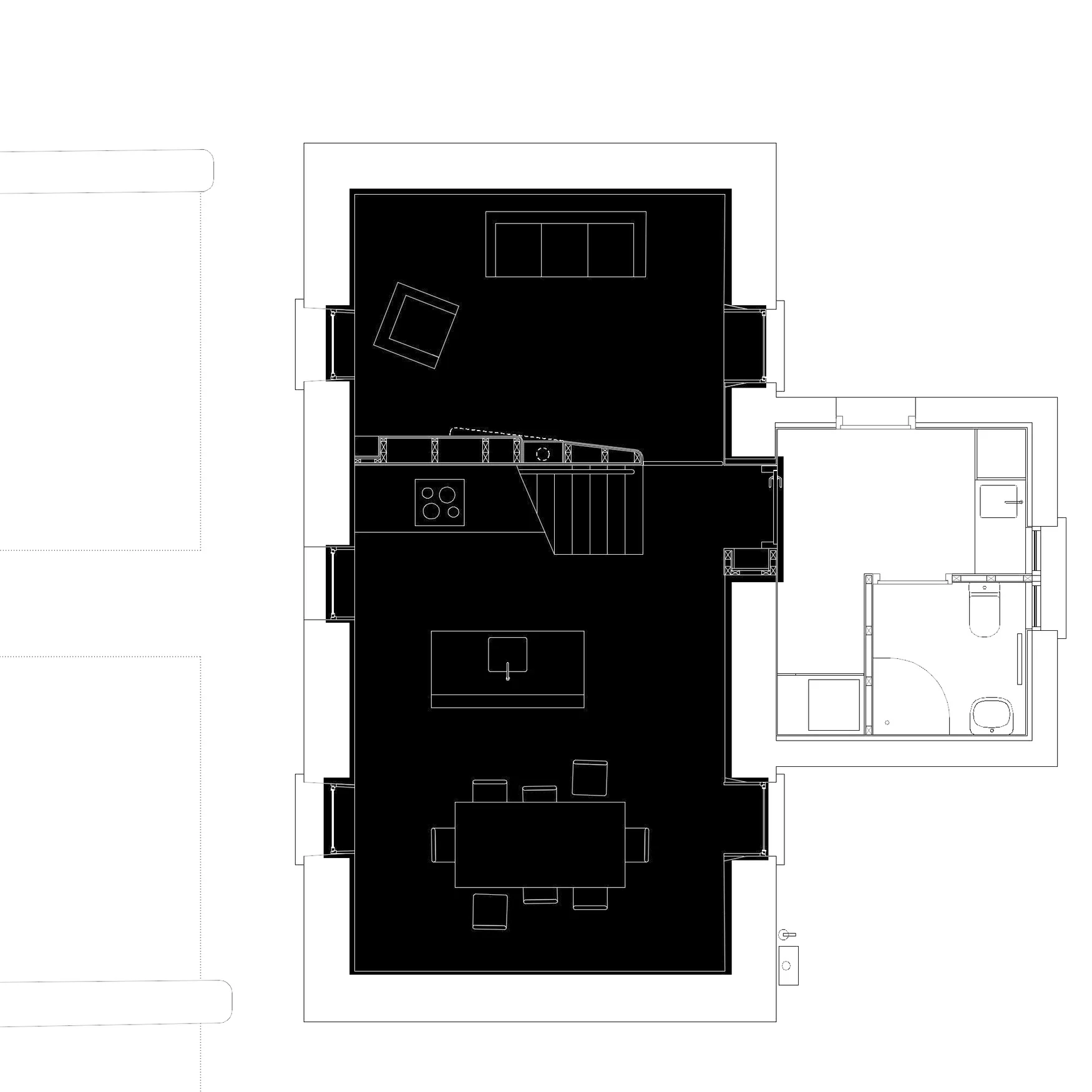
Ground Floor Proposed-Default-000.jpg
First Proposed2.jpg
sections3 proposed-Default-000.jpg
sections.jpg
prev / next